Halo guys. Di pembahasan kita kali ini kita akan bahas tentang langit - langit atau plafon bangunan.
Nah apa aja sih kegunaan langit - langit? Bahan apa aja yang biasa digunakan? Oke kita bahas satu per satu
ya.
Langit – langit atau plafon suatu
bangunan adalah bidang atas bagian dalam dari ruangan bangunan. Udah tau kan ya plafon itu yang mana? :D
⧫manfaat atau kegunaan langit - langit atau plafon adalah:
1. supaya ruangan di bawah atap selalu tampak bersih dan tidak tampak kayu dari rangka atapnya
2. untuk menahan kotoran yang jatuh dari bidang atap melalui celah - celah genteng
3. untuk menahan percikan air
4. untuk mengurangi panas dari sinar matahari
⧫Kalau untuk bahan - bahan yang biasa digunakan untuk langit - langit atau plafon antara lain:
Triplek, kayu, bambu, gipsum, papan, dan asbes.
⧫Nah, untuk memasang bahan - bahan tersebut tentu perlu dibuatkan konstruksi yang khusus untuk menggantungkannya, biasanya yang mudah digunakan adalah kayu, besi.
⧫Langit - langit dari lembar asbes (eternit)
eternit mempunyai ukuran:
100 cm x 100 cm, 100 cm x 200 cm, dengan tebal 0,4 cm.
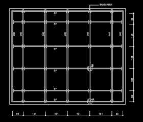
⧫Untuk memasang langit – langit atau plafon, digunakan batang - batang gantung langit – langit utama dengan jarak sesuai dengan ukuran langit – langit.
Tegak lurus padanya dipasang batang – batang kecil yang dibuat dari usuk atau kaso yang berukuran 5 cm x 7 cm atau 4 cm x 6 cm yang dipasang dengan klos – klos dari reng ukuran 2 cm x 3 cm dengan panjang 15 cm – 20 cm
Balok induk untuk ukuran yang terkecil.
⧫ Detail A
⧫ Detail B
Sekian dulu ya penjelasan singkatnya. Jangan lupa untuk cek terus blog arsitektur seru. Jangan lupa komen dan share! Semoga bermanfaat guys!





